FI
|
SE
|
NO
Lange ruller – sparer tid
Tette ruller – sparer plass
Lange ruller – mindre skjøter
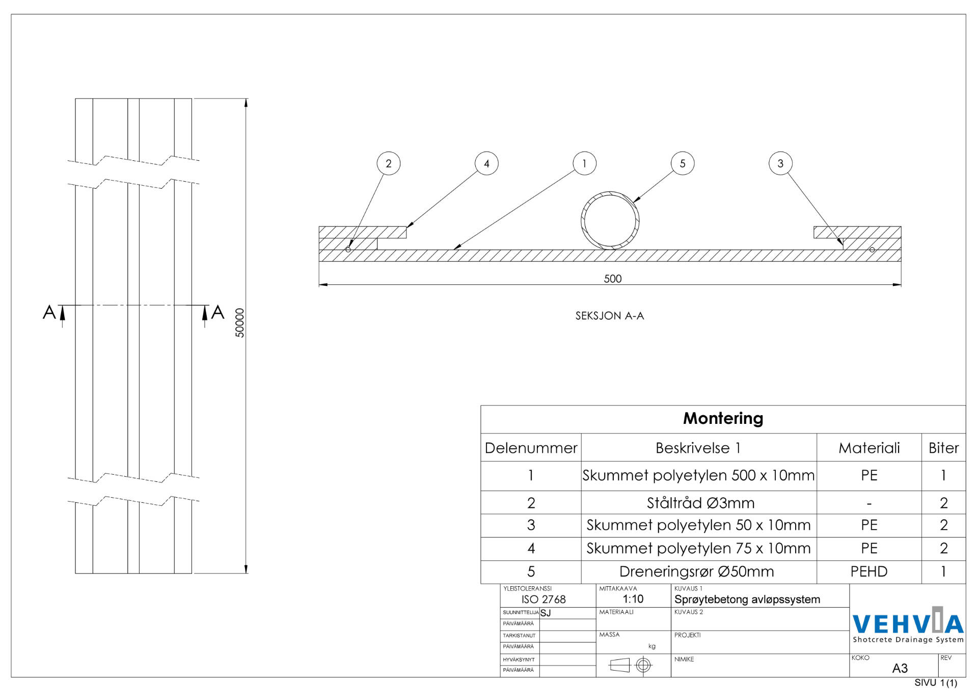
TEKNISKE DATA
Menu
FORSIDE
PRODUKTOPPLYSNINGER
KONTAKTOPPLYSNINGER