FI
|
SE
|
NO
Pitkä rulla – säästää aikaa
Tiivis rulla – säästää tilaa
Pitkä rulla – vähemmän liitoksia
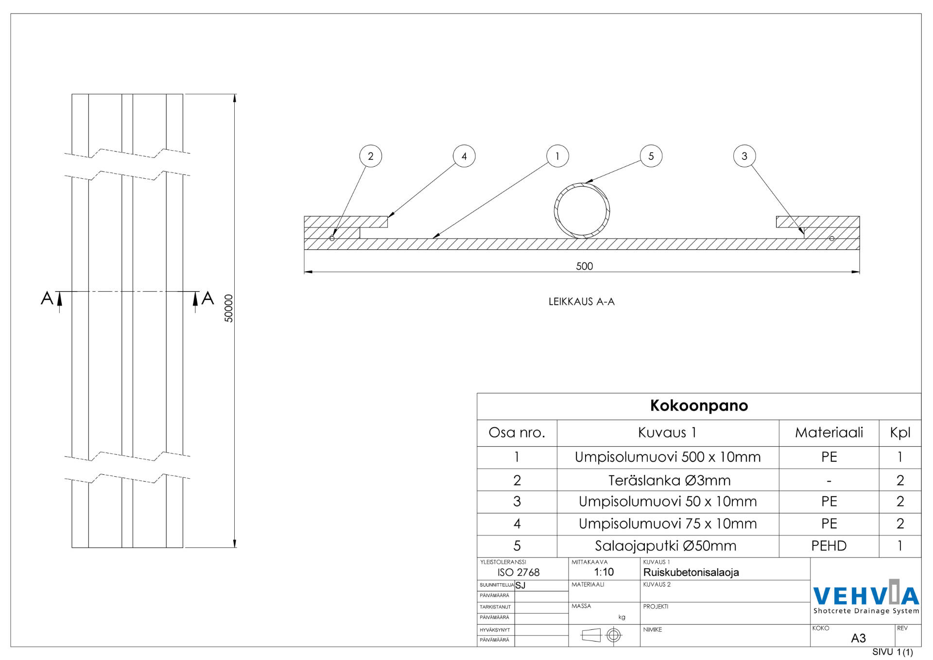
TEKNISET TIEDOT
Valikko
Etusivu
Tuotetiedot
Yhteystiedot
Ylös